Projeto de casa com telhado verde
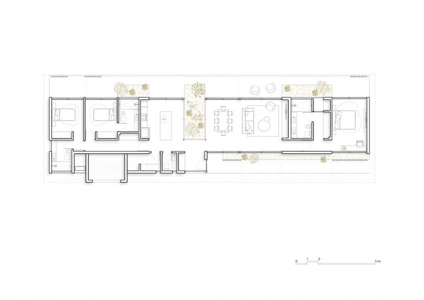
Onde: • 17 de Fevereiro - 2025 | Fotos AtelierMLocalizada em um terreno de 10.000 m² em Capilla del Señor, cidade a 80 quilômetros de Buenos Aires, a Casa GRI surge como uma expressão pura de horizontalidade dentro da vasta e plana paisagem. Com uma área construída total de 250 m², o projeto, assinado pelo escritório de arquitetura AtelierM, é inteiramente resolvido em um único nível, enfatizando uma conexão direta com o solo e explorando o entorno por meio de uma arquitetura simples, porém impactante.
O design, inspirado no caráter expansivo dos pampas, apresenta um telhado plano que funciona como um plano suspenso paralelo ao solo. Esse elemento não apenas unifica todo o programa arquitetônico, mas também se conecta ao terreno de forma fluida por meio de uma transição sutil e funcional: arquibancadas que “ancoram” delicadamente a cobertura ao solo. Além de servirem como ligação entre os diferentes níveis, essas arquibancadas celebram a paixão do proprietário pelos esportes, funcionando como áreas de assento para atividades ao ar livre, como equitação e futebol, em um espaço projetado para potencializar essas experiências.

A disposição do programa busca conforto e conexão com o ambiente, orientando todos os espaços para o norte a fim de maximizar a luz natural e as vistas. Pátios internos não apenas separam as áreas funcionais, mas também permitem a entrada de luz natural e promovem a ventilação cruzada, criando um microclima agradável no interior. A casa atinge um equilíbrio entre intimidade e abertura, integrando de forma harmoniosa a paisagem aos espaços de convivência.

A disposição do programa busca conforto e conexão com o ambiente, orientando todos os espaços para o norte a fim de maximizar a luz natural e as vistas. Pátios internos não apenas separam as áreas funcionais, mas também permitem a entrada de luz natural e promovem a ventilação cruzada, criando um microclima agradável no interior. A casa atinge um equilíbrio entre intimidade e abertura, integrando de forma harmoniosa a paisagem aos espaços de convivência.O projeto reflete um compromisso profundo com a sustentabilidade, adotando estratégias que integram design, funcionalidade e respeito ao meio ambiente. O telhado verde não apenas oferece isolamento térmico, mas também devolve a área construída à paisagem, fundindo a arquitetura ao ambiente natural. Os espaços voltados para o norte, combinados com beirais estrategicamente projetados e pátios internos, otimizam a luz natural e regulam a incidência solar, reduzindo a dependência de sistemas artificiais. Além disso, a ventilação cruzada garante um ambiente interno eficiente e confortável, minimizando a necessidade de controle climático mecânico. Complementando essas estratégias, a piscina natural foi projetada como um ecossistema autossustentável, eliminando o uso de produtos químicos e otimizando o consumo de água. Essa abordagem holística posiciona a Casa GRI como uma resposta contemporânea e responsável aos desafios ambientais e energéticos da atualidade.


Os arredores imediatos foram projetados com uma abordagem paisagística assinada por Carolina Pell focada no ecossistema, priorizando espécies nativas que respeitam e valorizam o ambiente natural das pampas. Esse design não só garante baixa manutenção e sustentabilidade, mas também reforça a continuidade entre arquitetura e natureza.




Serviço
Projeto: AtelierM
Equipe do projeto: Matías Mosquera, Camila Gianicolo, Cristian Grasso, Nicolás Krause, Sebastian Karagozlu, Francisco Gomez, Ivon Strk
Projeto paisagístico: Carolina Pell
Projeto estrutural: Gustavo Carreira
@ateliermatiasmosquera

